Réserver votre séjour au camping

en Pays de Craon

Accueil » Mobil-homes

Mobil-homes

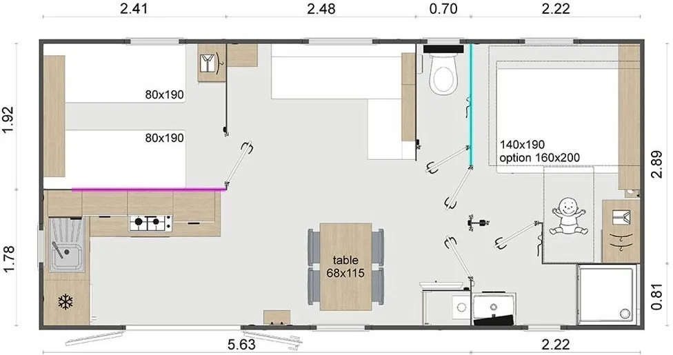
Le camping est équipé de 3 mobil-homes, dont un accessible aux Personnes à Mobilité Réduite (PMR).

Ils mesurent de 29,50 m² à  34 m² et peuvent accueillir jusqu’à 6 personnes.

Ils sont composés et équipés de :

  • une chambre avec un lit double,
  • une chambre avec 2 lits simples (superposés dans le mobilhome PMR),
  • une salle d’eau (douche, lavabo, WC),
  • un séjour/kitchenette s’ouvrant sur une terrasse couverte avec salon de jardin,
  • un canapé convertible pour 2 couchages,
  • un chauffage dans toutes les pièces,
  • une télévision.

Tarifs

Moyenne saison : du 01/04 au 02/07 et du 31/08 au 30/09

  • Forfait 2 nuits : 165 €
  • Forfait semaine : 360 €
  • Forfait long séjour (à partir de 21 nuits) : 990 €
  • Nuit supplémentaire : 45 €

Haute saison : du 03/07 au 30/08

  • Forfait 2 nuits : 185 €
  • Forfait semaine : 435 €
  • Nuit supplémentaire : 55 €

Informations pratiques

  • Dépôts de garantie : 300 € et 150 €
  • Forfait ménage : 80 €
  • Taxe de séjour : 0,55 € par personne de plus de 18 ans par nuit.
  • Linge de lit en location : 5 € 
  • Linge de toilette en location : 5 € 
  • Les animaux de compagnie sont acceptés dans les locatifs sur présentation du carnet de vaccination à jour : 4 € /nuit
  • Les chiens de catégorie 1 et 2 ne sont pas acceptés.

Arrivée possible à partir de 16h et départ avant 10h.