Location de salles
La base de loisirs de La Rincerie met à votre disposition plusieurs salles en location, parfaitement adaptées à vos besoins. Réunion de famille, anniversaire, mariage, rencontre associative ou événement professionnel : nos espaces modulables offrent de nombreuses possibilités pour organiser votre évènement en toute sérénité.
La salle principale peut être agrandie grâce à des cloisons amovibles, permettant de réunir plusieurs salles en un seul espace. Vous pouvez ainsi disposer d’une capacité totale de 200 places assises, idéale pour accueillir des groupes importants. Attenante à la salle principale, une cuisine équipée de matériel professionnel est également disponible à la location. Elle facilite l’organisation de vos repas, que vous fassiez appel à un traiteur ou que vous prépariez vos plats sur place. Toutes nos salles sont par ailleurs équipées de prises électriques, pour installer facilement votre matériel.
Pour prolonger votre événement ou accueillir vos invités, vous avez la possibilité de réserver les couchages du centre d’hébergement, situé à l’étage. Au tarif de 15,10 € par lit et par nuit, près de 100 couchages, répartis en 15 chambres dortoirs sont accessibles.
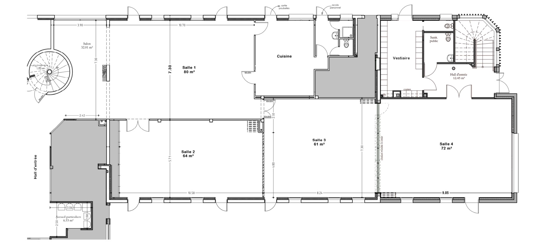
Plan des salles
Salle n°1 / principale
Cette salle de 80 m², pouvant accueillir jusqu’à 70 personnes assises, est automatiquement incluse lors de toute location (sauf pour les réunions de travail en semaine). Elle donne directement accès à la cuisine, aux couchages de l’hébergement ainsi qu’à un espace extérieur sécurisé offrant une belle vue sur l’étang.
Tarifs :
- Forfait week-end (du vendredi 18h au dimanche 22h)* : 355 €
- Samedi (10 h) au dimanche (17h) : 195 €
*Forfait week-end obligatoire du 01/04 au 31/10 inclus.
Salle n°2 et salle n°3
Ces salles vous permettront, uniquement, d’agrandir la première. Elles vous offriront un espace supplémentaire de 60 m² chacune. Leur capacité est de 30 places assises.
Tarifs :
- Forfait week-end (du vendredi 18h au dimanche 22h)* : 150 € /salle
- Samedi (10 h) au dimanche (17h) : 93 € /salle
*Forfait week-end obligatoire du 01/04 au 31/10 inclus.
Salle n°4
Pour bénéficier de l’espace maximum de location (200 personnes assises), vous aurez la possibilité de louer cette salle de 72 m² en supplément des trois premières. Sa capacité est de 70 places assises.
Tarifs :
- Forfait week-end (du vendredi 18h au dimanche 22h)* : 150 €
- Samedi (10 h) au dimanche (17h) : 93 €
*Forfait week-end obligatoire du 01/04 au 31/10 inclus.
Cuisine
Pour accompagner votre événement, nous vous proposons, en complément de la salle de réception, la mise à disposition de notre cuisine équipée, qui comprend : un lave-vaisselle, deux grands réfrigérateurs, un four, un micro-onde, une étuve et deux feux gaz. Il est également possible de louer, en supplément, un congélateur et un troisième réfrigérateur.
À l’extérieur de la salle, des prises à ampérage spécifique sont prévues pour les besoins des traiteurs. Un inventaire de la vaisselle vous sera transmis lors de la réservation afin de définir précisément vos besoins. La vaisselle est incluse dans la location de la cuisine et devra être restituée propre à la fin de votre événement.
Tarifs :
- Forfait week-end (du vendredi 18h au dimanche 22h)* : 255 €
- Samedi (10 h) au dimanche (17h) : 145 €
*Forfait week-end obligatoire du 01/04 au 31/10 inclus.
Vous souhaitez ajouter des équipements à la location de votre salle. Nous vous proposons :
- Un baby-foot
- Une table de tennis de table
- Un lot de jeux en bois
- Une enceinte et deux micros pour sonoriser la salle
- 6 mange debout avec housses
Pour plus d’informations ou pour toute demande de réunion ou location à la journée en semaine, contactez-nous au 02 43 06 17 52 ou par mail à accueil@la-rincerie.com
